Mehr Infos 07261 - 943515
1
Anzahl der Objekte: 1 | 1
Obj.: 1 | 1

GLOBAL INVEST SINSHEIM | Großes Baugrundstück mit viel Potenzial in Baiertal

Gesamtangebot Wohngrundstück Wiesloch
Gesamtangebot
1.590.000,- €
 
Flurstück 86 & 86/1 Wohngrundstück Wiesloch
Flurstück 86 & 86/1
Flurstück 86 & 86/1 Wohngrundstück Wiesloch
Flurstück 86 & 86/1
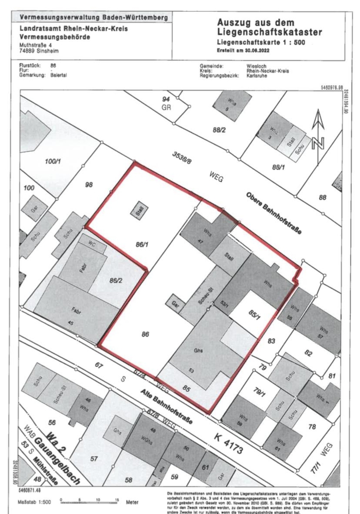
Lageplan Wohngrundstück Wiesloch
Lageplan

Objektart

Wohngrundstück

Adresse

69168 Wiesloch

Objektdaten

Objekt-Nr. 352
Grundstück (ca.) 2.131 m²
Kaufpreis 1.590.000,- €
Details
Provision für Käufer
4,76 %

Das von uns angebotene Abrissgrundstück besteht aus zwei Flurstücken mit einer Fläche von insgesamt 1358 m2

Flurstück 86 mit einer Größe von 858 m2
Flurstück 86/1 mit einer Größe von 500 m2

Das Grundstück ist für Bauträger oder Familien interessant, die ein Mehrgenerationen-Projekt
verwirklichen wollen.

Mittlerweile gibt es für die oben genannten Grundstücke zwei Bauvoranfragen mit Reihen, Doppelhäuser sowie Geschossbau.
Gerne können wir Ihnen in einem persönlichen Gespräch darlegen, was genehmigungsfähig ist!

Mit dem heutigen Angebot erweitern wir den Bauplatz um die Flurstücke 85 & 85/1.

Somit stehen Ihnen insgesamt 2131 m² zur Bebauung zur Verfügung.

Wir möchten Sie außerdem darauf hinweisen, dass eine eigenmächtige Begehung des Grundstückes von Seiten der Eigentümer nicht erwünscht ist!

+ vier Flurstücke mit einer Gesamtfläche von 2131 m2.

+ 86 & 86/1 gibt es schon Bauvoranfragen.

Die Gemeinde Baiertal liegt in unmittelbarer Nähe zu Wiesloch. Die 4500 Einwohner umfassende Gemeinde ist gerade bei jungen Familien sehr beliebt, da Sie alles vor Ort finden was Sie zum täglichen Leben benötigen. Darüber hinaus hat Baiertal neben einer hervorragenden Infrastruktur auch ein reges Vereinsleben zu bieten.

Anfragen stellen Sie bitte über unsere Homepage oder das Immobilienportal.

Die Provision ist mit Abschluss des notariellen Kaufvertrages verdient.

Ansprechpartner

Ansprechpartnerfoto Herr Mario Krompholz

Herr Mario Krompholz
Telefon: 00497261943512
Telefax: 00497261943529
Mobil: 004915226842932
m.krompholz@global-invest-team.de

Ich bin damit einverstanden, dass mir Karten von Google angezeigt werden. Es gelten die Datenschutzbedingungen von Google (https://policies.google.com/privacy).

Ich bin einverstanden

Objektanfrage

Sie haben noch Fragen zu dem Angebot oder wollen einen Besichtigungstermin vereinbaren, dann füllen Sie einfach das untenstehende Formular vollständig aus und wir setzen uns schnellstmöglich mit Ihnen in Verbindung.
* Pflichtfelder

Exzellent

5,0

Basierend auf 127 Google-Bewertungen

Echtheit von Bewertungen